INGEGNERIZZAZIONE DELL'ARCHITETTURA TECNICA E GESTIONE DELLE COMPLESSITÀ DI PROGETTO

Menu

Portfolio

Portfolio Infrastrutture

Infrastrutture > Ristrutturazione a spazi commerciali e uffici a Moncalieri - Progettazione edilizia S.r.l.

Ristrutturazione a spazi commerciali e uffici a Moncalieri - Progettazione edilizia S.r.l.

Progettazione strutturale definitiva ed esecutiva completa di Direzione lavori nell’ambito della ristrutturazione ed ampliamento di magazzino e palazzina uffici di corso Savona n° 85, a Moncalieri (TO), per la trasformazione ad uso commerciale.

 

Importo delle opere: € 1.150.000,00

 

L’intervento progettato dall’Arch. Flavio Pacchioni prevede la trasformazione in spazi commerciali a lotti componibili di un edificio originariamente adibito a magazzino, formato da due navate con volte a botte, conservandone esclusivamente i pilastri e le travi in sommità e realizzando un piano soppalchi intermedio, un solaio in sommità (a livello delle travi conservate) di circa 1.300 m² e un volume sovrastante di 650 m² in pianta, oltre ad un nuovo volume (con solai complanari a quelli appena descritti) di completamento dello spazio (270 m²) fra l’ex-Magazzino e la palazzina uffici.

 

La struttura è prevalentemente in carpenteria metallica tranne per i nuovi pilastri necessari nel nuovo volume citato e altre opere accessorie (setto per scale mobili esterne, vano ascensore e scala di collegamento nelle zona fra il volume vecchio e quello nuovo).

Disegni
Cloud Zoom small image

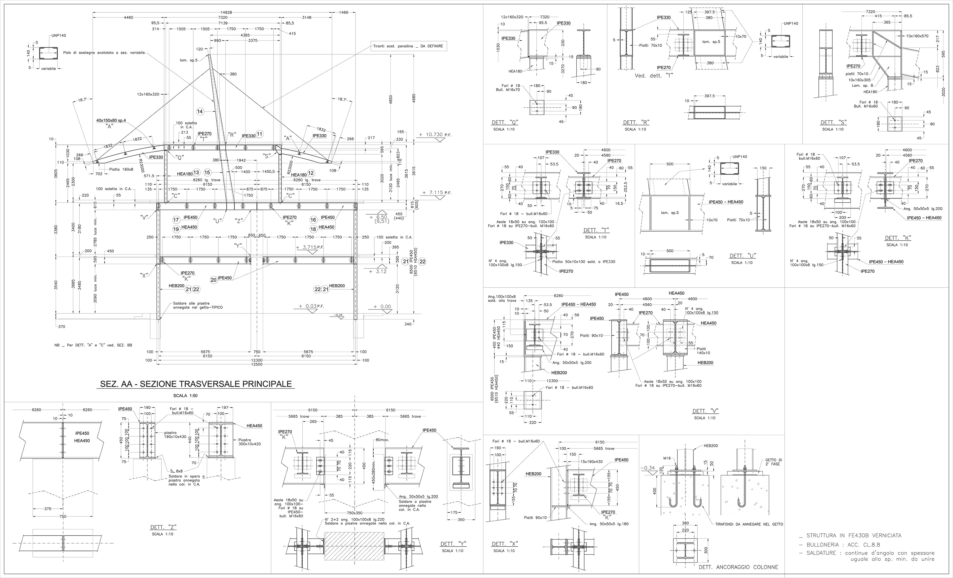
Nella sezione si vedono i nuovi soppalchi che dividono il volume dell'ex-magazzino e la struttura di copertura in acciaio

Cloud Zoom small image

Carpenteria della struttura di copertura delle scale mobili

IL PROGETTO IN CIFRE

1.150.000 importo complessivo delle opere

650 mq, superficie del nuovo volume creato sopra il magazzino esistente

270 mq, superficie del volume di completamento tra ex magazzino e palazzina uffici