INGEGNERIZZAZIONE DELL'ARCHITETTURA TECNICA E GESTIONE DELLE COMPLESSITÀ DI PROGETTO

Menu

Portfolio

Portfolio Sanitario

Sanitario > Centri di Radiodiagnostica a Torino - IRMET S.p.A.

Centri di Radiodiagnostica a Torino - IRMET S.p.A.

Progetti preliminari, definitivi ed esecutivi, Direzione dei lavori generale e coordinamento sicurezza in fase progettuale ed esecutiva per la ristrutturazione di più unità immobiliari ai piani terreno, interrato e primo in edificio residenziale in Torino.

 

Ristrutturazione, per complessivi 1.360 m², destinati al primo laboratorio di radiodiagnostica per immagini medico-cliniche in Torino, realizzato nel 2003/2004 e ampliato due volte nel 2006 e nel 2008, modificato poi nel 2011.

 

Importo delle opere complessivo: € 2.451.000,00

 

La realizzazione di un ambulatorio altamente specialistico all’interno di un condominio (1° fase: 500 m², con 2 macchine CT-PET e un frazionare) in tempi ristretti ed i suoi due successivi ampliamenti (2° fase: 880 m²; 3° fase: 480 m²), senza interruzione dell’attività del Centro di radiodiagnostica, ha comportato notevoli difficoltà organizzative in cantiere e la soluzione sul campo di numerosissimi imprevisti e problemi connessi al rispetto delle normative sanitarie (spesso difficilmente “traducibili” nell’ambito condominiale) ed alle varianti in corso d’opera conseguenti alle peculiarità dell’intervento.

 

Nelle fasi successive di ampliamento sono stati necessari interventi di potenziamento di tutti gli impianti di trattamento aria ed un collegamento interno del piano interrato e terreno con il piano primo adibito ad uffici.

 

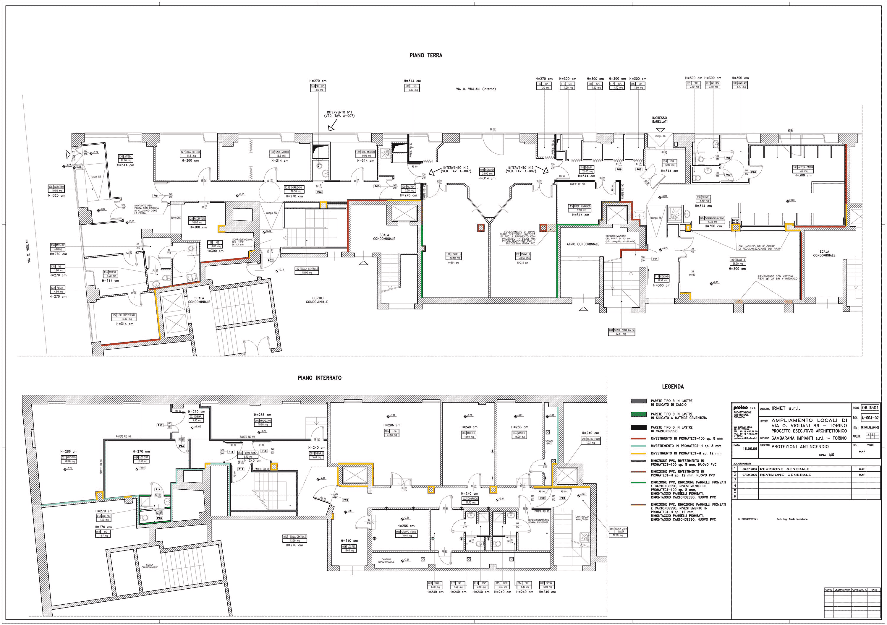
Notevolmente impegnative sono state la progettazione e la realizzazione delle opere necessarie al rispetto della normativa di prevenzione incendi, in particolare la riqualificazione della resistenza al fuoco delle strutture dell’edificio (fino ad R90) e quelle delle pareti di separazione con altri locali non di proprietà (fino ad R120).

 

Complessa anche la progettazione e realizzazione delle radioprotezioni di pareti e solai sovrastanti con pannelli piombati, in particolare quelle dei solai che hanno comportato la predisposizione di strutture in carpenteria metallica sospesa direttamente alle colonne del fabbricato, per il sostegno della pannellatura piombata (di peso complessivo pari a circa 220 Kg/m²).

 

Nel 2008 poi è stato realizzato un secondo ampliamento di circa 480 m², con l’inserimento di una 4° macchina ed un secondo frazionatore che ha comportato la ristrutturazione di locali pre-esistenti per altri 100 m².

Disegni e foto
Cloud Zoom small image

Pianta delle finiture edili

Cloud Zoom small image

Planimetria con le protezioni antincendio

Cloud Zoom small image

Protezioni antincendio, dettagli dei raccordi tagliafuoco

Cloud Zoom small image

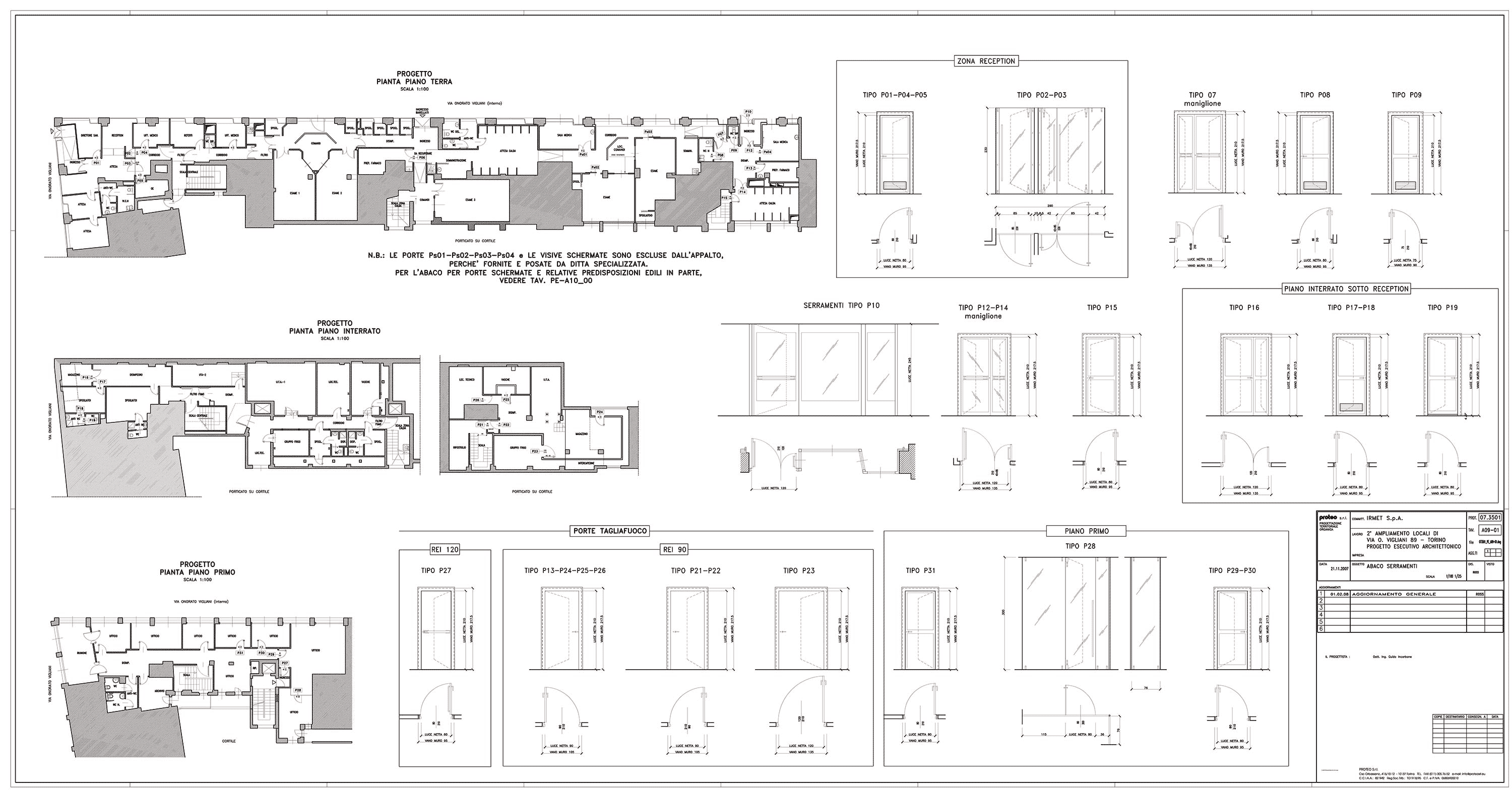
Abaco dei nuovi serramenti

Cloud Zoom small image

Schizzo di studio dell'irrigidimento solaio

Cloud Zoom small image

Tavola di progetto dell'irrigidimento solaio

Cloud Zoom small image

Irrigidimento solaio realizzato

Cloud Zoom small image

Progetto di rinforzo solaio in corrispondenza dei passaggi dei canali dell'aria

Cloud Zoom small image

Schizzo di studio della schermatura delle pareti

Cloud Zoom small image

Schermature in piombo realizzate

Cloud Zoom small image

Progetto del passafarmaco e delle pareti del locale frazionatore

Cloud Zoom small image

Passafarmaco realizzato

Cloud Zoom small image

Passafarmaco realizzato

Cloud Zoom small image

CT-PET

IL PROGETTO IN CIFRE

2.451.000 importo complessivo delle opere

1.360 mq, superficie ristrutturata e trasformata nel primo laboratorio di radiodiagnostica per immagini medico-cliniche in Torino

3+2installazione di 3 macchine CT-PET e 2 frazionatori