INGEGNERIZZAZIONE DELL'ARCHITETTURA TECNICA E GESTIONE DELLE COMPLESSITÀ DI PROGETTO

Menu

Portfolio

Portfolio Infrastrutture

Infrastrutture > Restyling stazioni funiviarie a La Thuile - Funivie Piccolo San Bernardo S.p.A.

Restyling stazioni funiviarie a La Thuile
Funivie Piccolo San Bernardo S.p.A.

Progetto preliminare, definitivo ed esecutivo per la riqualificazione delle stazioni di valle (1.470 m. s.l.m.) e di monte (2.200 m. s.l.m.) della funivia bifune D.M.C. – KC15 “Golette – Les Suches” di La Thuile (AO).

 

Importo dei lavori (opere edili): € 416.000,00

 

L’intervento di riqualificazione edile dell’impianto funiviario ha previsto sinteticamente per la stazione di valle una serie di opere volte a rendere più accogliente le parti utilizzate dagli sciatori, riducendo l’impatto acustico dell’impianto sull’atrio, la zona di accesso alle cabine e sulla pedana di sbarco (ritorno), migliorando anche l’aspetto estetico degli ambienti, in origine totalmente scarni e quasi di tipo “industriale” ed incrementando l’ecoefficienza energetica di Cabine di Comando e box biglietteria. Le opere progettate e realizzate sono:

 

- sostituzione dei portoni di ingresso e uscita dal fabbricato con nuovi a libro in acciaio preverniciato compreso cornici dello stesso colore e di notevole dimensioni per l’inserimento formale in facciata;

 

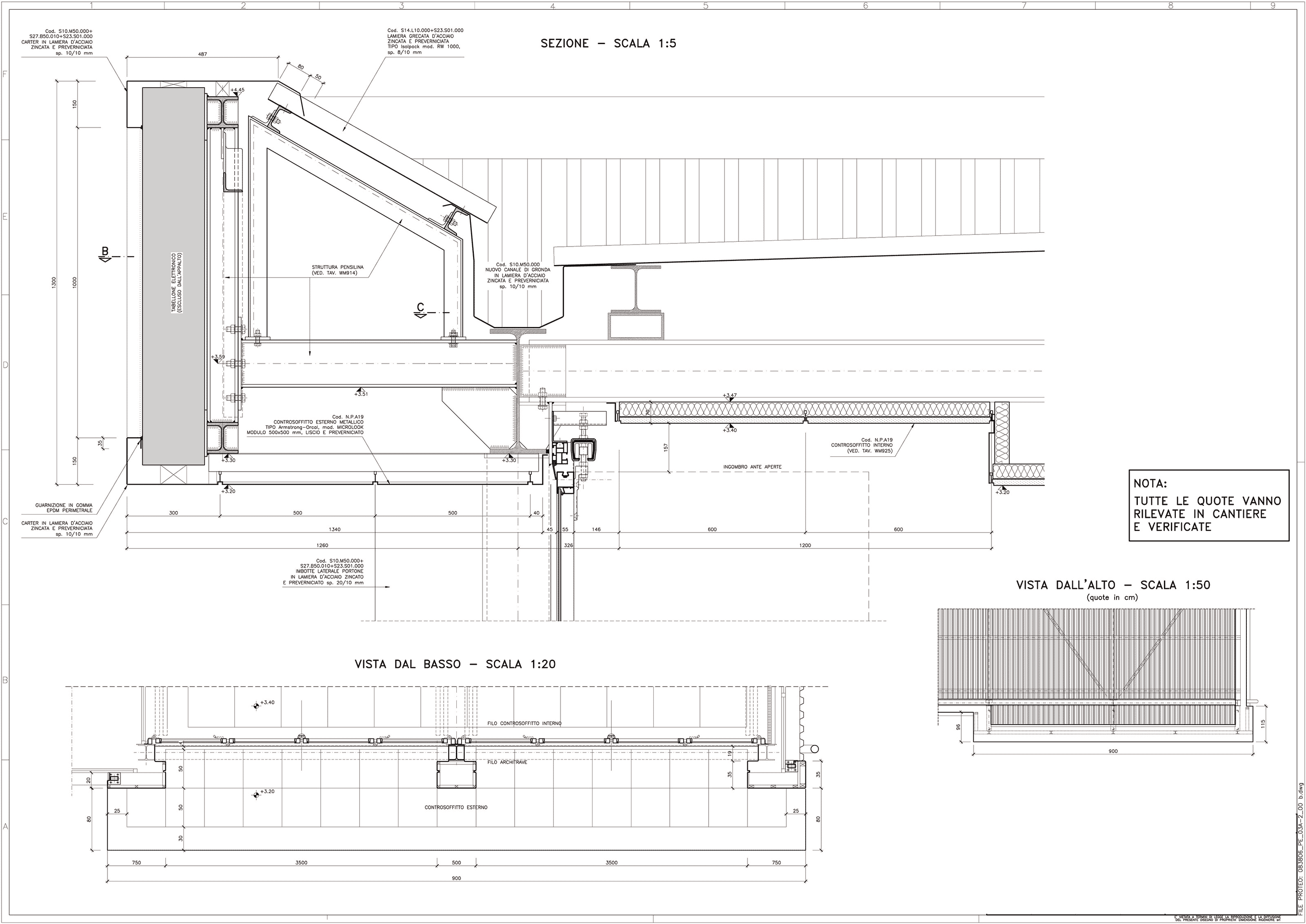
- realizzazione di pensilina aggettante sopra l’ingresso a protezione esterna e supporto di tabellone elettronico informativo;

 

- insonorizzazione dell’atrio e delle pedane di salita e discesa controparti in pannelli di policarbonato a tripla camera, colorato e controsoffitto in pannelli modulari di gesso microforato, con corpi illuminanti incassati;

 

- realizzazione di box biglietteria/controllo vetrato e coibentato con arredo interno integrato, inserimento senza soluzione di continuità nell’atrio e affiancato da portone interno a 2 battenti in alluminio e policarbonato alveolare colorato;

 

- realizzazione espositore per sci e oggetti d’epoca inserito in una delle controparti in pannelli di policarbonato;

 

- rifacimento della cabina comando centrale rispetto alle vie di transito delle vetture in arrivo ed in partenza, in pennellature in alluminio preverniciato con pennellature coibentati (doppia lamiera in alluminio preverniciato con frapposto coibente) interne e vetrocamera, completate da controsoffitto interno e foderamento colonne strutturali del fabbricato con pennellature coibenti;

 

- realizzazione di nuovo locale Gruppo Elettrogeno esterno al fabbricato, sospeso sulla facciata lato valle, realizzato in carpenteria metallica, pavimento in lamiera grecata completata da getto in c.a., intradosso solaio, pareti e coperture in doppia lamiera grecata preverniciata con frapposto coibente ignifugo, serramenti di ventilazione, faldalerie, pavimentazione in gres, parete e porte di accesso tagliafuoco, filtro a prova di fumo di separazione con il piano d’imbarco della stazione;

 

Nella stazione di monte è stata rifatta la cabina comando analogamente a quella di valle e sollevata la copertura del fabbricato nella zona dell’argano, aumentando la volumetria della parte di monte della stazione.

Disegni
Cloud Zoom small image

Dettaglio della pensilina di ingresso

Cloud Zoom small image

Dettaglio delle contropareti nella zona atrio

Foto

Clicca sull'immagine per visualizzarla interamente

Vista della stazione prima dell'intervento

Il volume del nuovo gruppo elettrogeno, con struttura in acciaio rivestito in lamiera

Nuovo atrio d'ingresso

Vista dell'ingresso alla stazione

Dettaglio delle contropareti nella zona atrio

Vista del nuovo ingresso

Vista della zona imbarco con le nuove contropareti

Vista della zona imbarco con le nuove contropareti

IL PROGETTO IN CIFRE

416.000 importo delle opere edili

1.470 metri s.l.m., Stazione di Valle

2.200 metri s.l.m., Stazione di Monte