INGEGNERIZZAZIONE DELL'ARCHITETTURA TECNICA E GESTIONE DELLE COMPLESSITÀ DI PROGETTO

Menu

Portfolio

Portfolio Residenziale

Residenziale > Ristrutturazione di villa in collina a Torino

Ristrutturazione di villa in collina a Torino

Progetto preliminare, definitivo ed esecutivo, architettonico e strutturale, direzione dei lavori generale e coordinamento della sicurezza in fase progettuale ed esecutiva per la ristrutturazione di villa unifamiliare ad un piano seminterrato ed uno fuori terra, per complessivi 500 m², nella collina torinese.

 

Importo dei lavori: € 1.205.000,00

 

La ristrutturazione della villa, edificata a metà degli anni ’70, è consistita nel totale rifacimento della distribuzione interna, delle facciate (inadeguate dal punto di vista energetico) e degli impianti e precisamente:

 

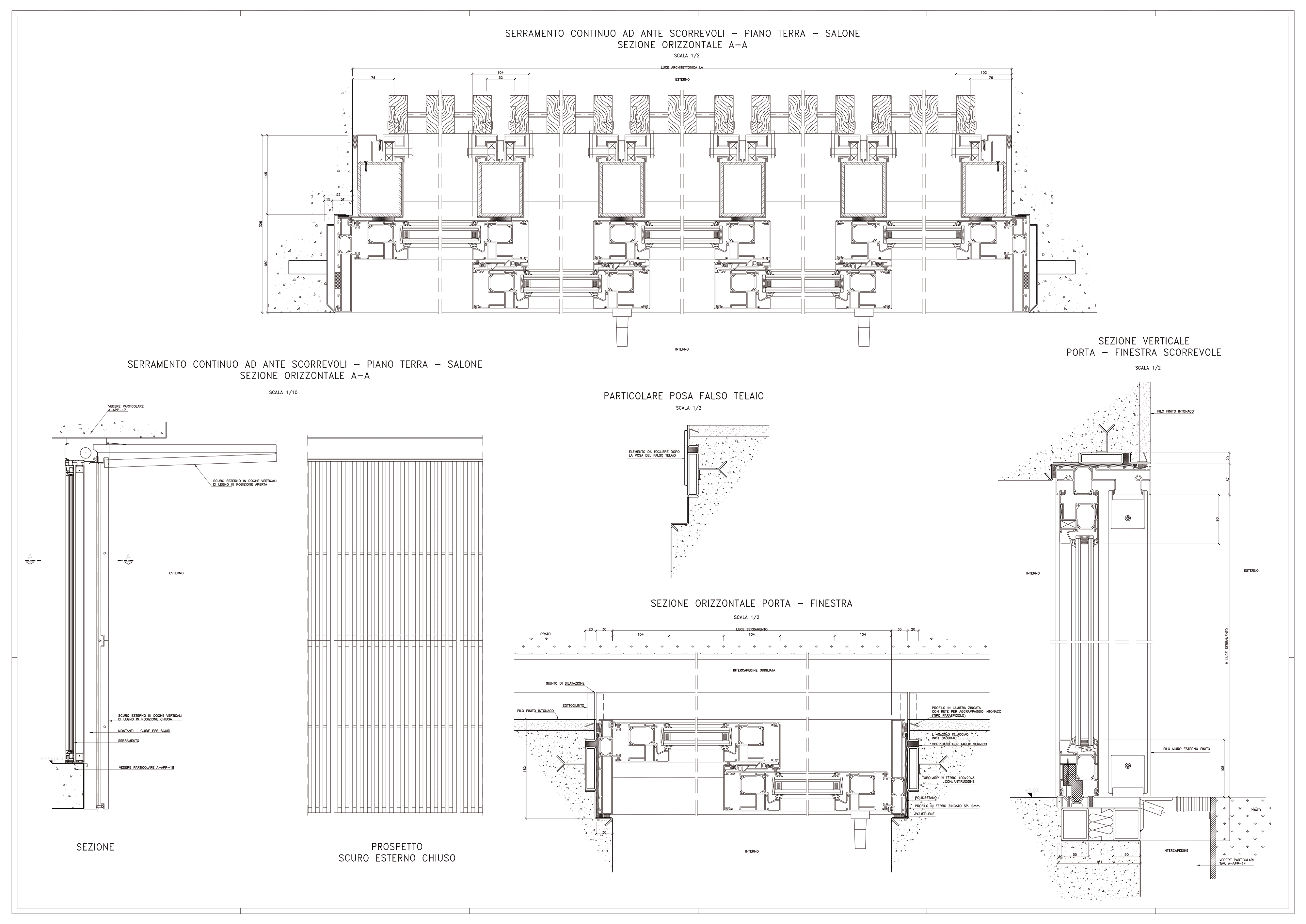
- nuovi serramenti esterni scorrevoli in alluminio di notevoli dimensioni e perfettamente complanari alla superficie delle pareti esterne, oltre a due bow-window in acciaio con apertura ad anta;

 

- apertura di quattro lucernari rettangolari in copertura e uno di dimensioni 2,0*10,0 m e relativi rinforzi strutturali del solaio di copertura in c.a.;

 

- sistema di intercapedini e impermeabilizzazione attorno all’edificio, al fine di ottenere ovunque il piano prato esterno alla stessa quota del piano interno, pur con la sola vista di una griglia in acciaio inox di larghezza 10 cm a chiusura superficiale delle intercapedini;

 

- coibentazione ed altri interventi per l’incremento dell’ecoefficienza dell’edificio seminterrato;

 

- contropareti perimetrali coibentate e pareti interne in muratura e in cartongesso, con particolari caratteristiche isolanti e talune di altezza, rigidezza e fonoassorbenza, rivestite interamente in boiserie;

 

- controsoffitti coibentati e fodere in cartongesso isolante per oltre 300 m²;

 

- palchetti in listoni di rovere posati su sabbia e sulle serpentine dell’impianto a pannelli radianti, anche nella sala da bagno;

 

- serramenti interni in legno, scorrevoli a scomparsa e ad anta;

 

- box doccia interamente progettato e realizzato su misura, al centro della sala da bagno, con due pareti in cristallo fisse e una parete di testata piastrellata all’interno e rivestita all’esterno in boiserie, aperto su un lato, con vasca piastrellata e canalina in acciaio inox perimetrale;

 

- rivestimento esterno di una parte dell’edificio in blocchi di pietra, recuperati da altri prospetti e posati ad imitazione del prospetto già rivestito, occultando completamente i telai dei nuovi serramenti;

 

- pavimentazioni esterne in doghe di legno accostate e sistema di raccolta e scarico acque sulla soletta sottostante;

 

- rivestimenti esterni (per la metà della superficie delle facciate) a doghe verticali di legno in parte fissi, in parte scorrevoli ed in parte apribili a compasso verso l’esterno e motorizzati;

 

- opere varie all’esterno per la modellazione del parco in prossimità dell’edificio e alla verifica, revisione e modifica degli impianti di adduzione e scarico.

 

La direzione dei lavori ed il coordinamento per la sicurezza sono stati caratterizzati dal limitato periodo di tempo a disposizione (6 mesi trascorsi fra le date di inizio e fine lavori) e dal coordinamento delle 12 ditte coinvolte con contratti separati per la realizzazione di tutte le opere.

Disegni e foto

Clicca sull'immagine per visualizzarla interamente

Dettaglio del prospetto sud

Il giardino con i caratteristici decori con travi in legno

Dettagli dei serramenti

Vista dei serramenti e degli scuri del salone

Nuovi lucernari nel salone

Dettaglio dell'intercapedine esterna

Foto dell'intercapedine realizzata

Dettaglio zona ingresso

Dettaglio rivestimento in pietra in corrispondenza dei serramenti

IL PROGETTO IN CIFRE

1.205.000 importo dei lavori

500 mq, superficie complessiva della villa distribuita su 2 piani

12 le ditte coinvolte con contratti separati, da coordinare come direzione lavori