INGEGNERIZZAZIONE DELL'ARCHITETTURA TECNICA E GESTIONE DELLE COMPLESSITÀ DI PROGETTO

Menu

Portfolio

Portfolio Infrastrutture

Infrastrutture > Opere di urbanizzazione primaria a Torino

Opere di urbanizzazione primaria a Torino

Progettazione preliminare, definitiva, esecutiva di opere di urbanizzazione primaria.

 

Importo dei lavori: € 1.043.000,00

 

L'area di intervento è ubicata a Torino, fra via Reiss Romoli, via Ala di Stura, corso Grosseto ed il raccordo di arrivo della superstrada Torino-Caselle e si estende per circa 45.000 m², di cui circa 10.000 m² edificabili.

 

La progettazione delle opere di urbanizzazione primaria ha riguardato, oltre alle reti acque, gas, elettricità, telefonia e fognaria, tutto lo studio delle opere di superficie ovvero:

 

- parcheggi;

- illuminazione pubblica;

- area gioco bimbi;

- arredo urbano;

- viabilità pedonale e veicolare;

- piantumazione della vasta area verde compresa tra l'edificato e corso Grosseto.

 

Disegni

Clicca sull'immagine per visualizzarla interamente

Planimetria con la distribuzione delle aree destinate a verde pubblico

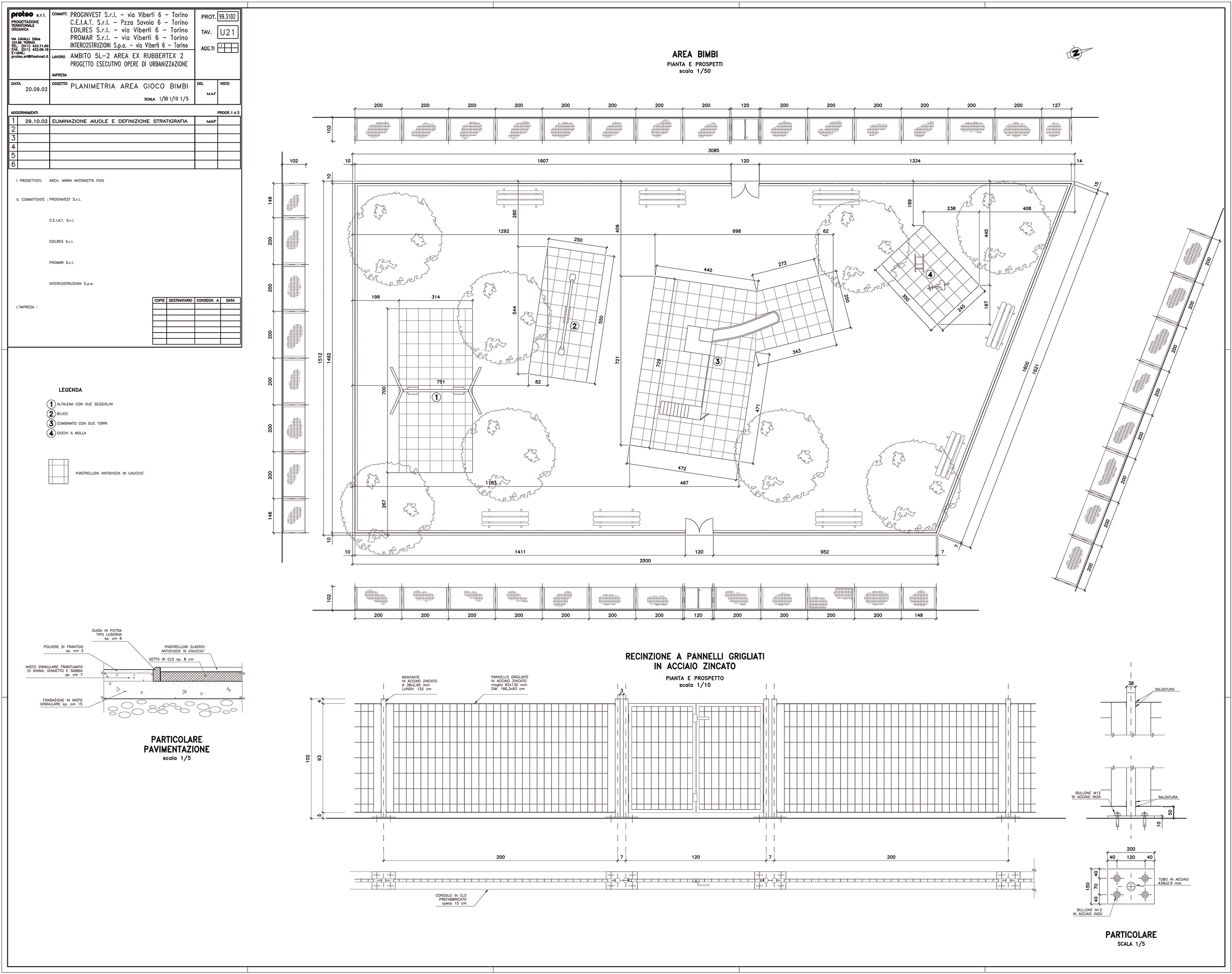
Progetto dell'area gioco bambini

Particolari costruttivi e dettagli dei marciapiedi

Sezione stradale di progetto

Studio della fognatura nera, sezioni e dettagli

IL PROGETTO IN CIFRE

1.043.000 importo delle opere di urbanizzazione

45.000 mq, l’area di intervento, fra via Reiss Romoli, via Ala di Stura, corso Grosseto ed il raccordo di arrivo della superstrada Torino-Caselle.

10.000 mq di superficie edificabile.