INGEGNERIZZAZIONE DELL'ARCHITETTURA TECNICA E GESTIONE DELLE COMPLESSITÀ DI PROGETTO

Menu

Portfolio

Portfolio Industriale

Industriale > Capannone industriale con uffici tecnici e direzionali - GE Avio S.r.l.

Progettazione preliminare, definitiva ed esecutiva completa (opere edili, strutturali ed impiantistiche) ed Alta Sorveglianza del cantiere del nuovo stabilimento GE Avio srl al Km.3 della S.P. Cameri - Bellinzago (NO).
 

Importo complessivo delle opere: € 3.907.670,00 di cui:
• opere edili e strutturali: € 2.144.410,00
• impianti meccanici: € 1.123.240,00
• impianti elettrici e similari: € 640.020,00
 

GE Avio srl è società leader nella progettazione e produzione con tecnologie avanzatissime di fusione in alto vuoto, a partire da un bagno di polveri di leghe di titanio, per la produzione di componenti e sistemi per la propulsione aerospaziale, con utilizzo in ambito civile, militare, spaziale, energetico, navale e biomedico.
 

All'edificio il progetto ha dato una veste architettonica razionale, sobria, coerente, moderna e introversa, mediando tutte le esigenze di un'attività industriale assolutamente particolare.
 

La Superficie Territoriale è di 10.000 mq, di cui 8.000 mq di Superficie Fondiaria.
 

L'edificio principale, di superficie in pianta pari a circa 1.610 mq, con 610 mq al piano 1° nella zona uffici lato facciata principale, è collocato al centro del lotto ed ospiterà esclusivamente le funzioni di produzione industriale e ufficio.
 

All'interno della zona produttiva è previsto un soppalco metallico di circa 600 mq di estensione per l'ampliamento delle aree di lavoro.
 

Caratterizza l'edificio la facciata principale metallica aggettante, segnata da grandi moduli rettangolari e realizzata in pannelli in Alucobond, la cui colorazione è richiamata sulle pareti in c.a. prefabbricati nella fascia superiore ed inferiore.
 

Lungo il perimetro edificabile sono stati collocali invece i locali tecnici (290 mq circa) a supporto dell'impianto produttivo e le platee dove saranno collocati alcuni impianti meccanici, al fine di disimpegnare totalmente le attività di conduzione e manutenzione degli impianti generali, dall'attività principale dell'Azienda.
 

Una fascia perimetrale "verde" circoscrive la superficie fondiaria, delimitata da una recinzione che segna il confine di proprietà.
 

L'area verde attigua al fabbricato principale potrà essere utilizzata come zona di futura espansione dell'edificio.
 

Disegni
Cloud Zoom small image

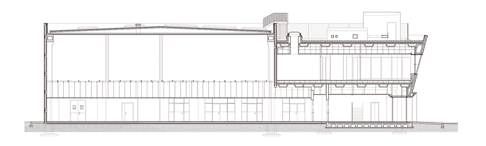
Sezione complessiva del fabbricato, diviso in zona produttiva e zona uffici

Cloud Zoom small image

Studio di dettaglio dell'attacco a terra della facciata inclinata

Cloud Zoom small image

Studio della scala di accesso al primo piano e della fioriera che vi si affaccia

Cloud Zoom small image

Studio di dettaglio dell'attacco della facciata inclinata alla struttura di copertura del fabbricato

Cloud Zoom small image

Dettaglio sulle due tipologie di copertura, della zona di produzione e della zona uffici

Cloud Zoom small image

Dettaglio della gronda in copertura della zona produzione

Cloud Zoom small image

Sezione su filtro antifumo da piano terra a copertura

Cloud Zoom small image

Dettaglio della copertura dei cavedi per il passaggio di canali e tubazioni

Cloud Zoom small image

Dettaglio del solaio di copertura e del muro perimetrale dei fabbricati tecnici

Cloud Zoom small image

Tipologico dei lucernari in copertura

Foto cantiere

Clicca sull'immagine per visualizzarla interamente

Montaggio dei pilastri prefabbricati e realizzazione del vano ascensore in cemento armato

Realizzazione dell'isola tecnica in blocchi di calcestruzzo

Montaggio dei pannelli di tamponamento prefabbricati

Montaggio travi prefabbricate della zona uffici

Prefabbricato completato

Prefabbricato completato

Scavo della vasca antincendio

Getti della vasca antincendio

Vasca antincendio completata

Il piano di posa per il vespaio della zona uffici

Copertura della zona produttiva con lucernari prefabbricati

IL PROGETTO IN CIFRE

3.907.670 importo complessivo delle opere (di cui opere edili e strutturali € 2.144.410, impianti meccanici € 1.123.240, impianti elettrici e similari € 640.020)

1.610mq, superficie in pianta del fabbricato principale

290mq, superficie locali tecnici a supporto dell'impianto produttivo