INGEGNERIZZAZIONE DELL'ARCHITETTURA TECNICA E GESTIONE DELLE COMPLESSITÀ DI PROGETTO

Menu

Portfolio

Portfolio Industriale

Industriale > Ristrutturazione ristorante aziendale a Pomigliano d'Arco

Ristrutturazione ristorante aziendale a Pomigliano d'Arco

Progettazione definitiva ed esecutiva e alta sorveglianza delle opere edili e strutturali per la ristrutturazione dei locali per la preparazione e la distribuzione dei pasti della mensa dello stabilimento Avio S.p.A. di Pomigliano d'Arco.

 

Gli interventi si possono così riassumere:

 

- Per poter realizzare una parte degli impianti a pavimento, si è realizzato un sottofondo tale da portare il piano finito a +20 cm rispetto al piano attuale, realizzando quindi dei raccordi con la zona della ristorazione con pavimenti in pendenza o rampe di raccordo.

 

- Sostituzione dei pavimenti attuali con un massetto in c.a. lisciato e finito con malta sintetica epossidica con sguscia a pavimento e delle pareti con lo stesso materiale, eliminando le eventuali piastrelle, per ottenere superfici lavabili facilmente

 

- Esternamente si è creata una zona ordinata per i contenitori dei rifiuti, realizzata una scala metallica di accesso al piano di copertura, il completamento della pavimentazione e delle aiuole attuali, oltre a rampe di raccordo con il piano interno del ristorante aziendale.

Disegni
Cloud Zoom small image

Planimetria generale del ristorante

Cloud Zoom small image

Planimetria con le murature in progetto

Cloud Zoom small image

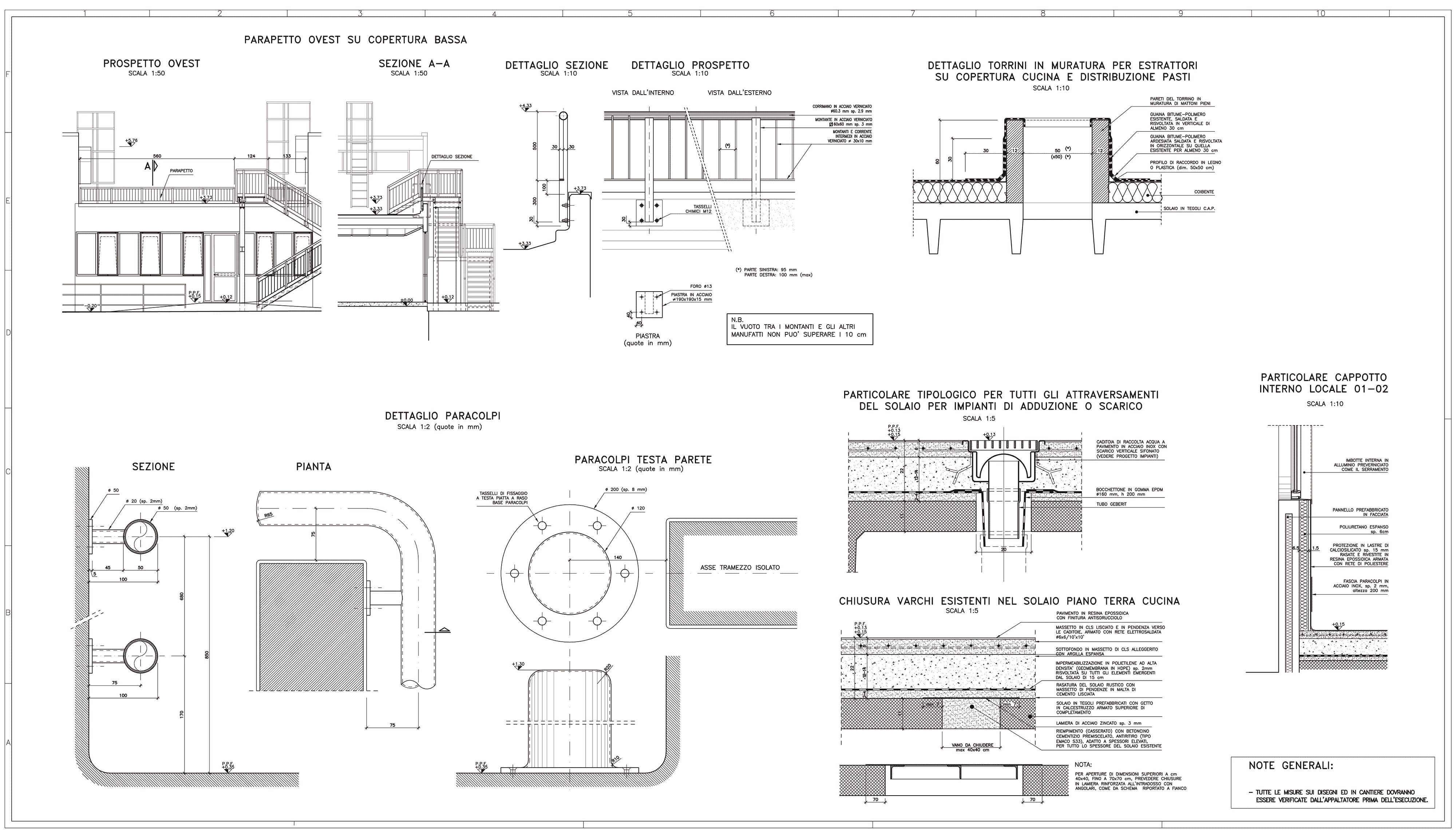
Studio di dettagli e particolari costruttivi

Cloud Zoom small image

Tipologie di controsoffitti e nodi in dettaglio

Foto cantiere

Clicca sull'immagine per visualizzarla interamente

Nodo controsoffitto-serramento, disegno e realizzazione

Resinatura del pavimento nella zona di distribuzione pasti

IL PROGETTO IN CIFRE

371.050 importo complessivo delle opere edili

920mq, superficie dell'area d'intervento, comprendente la zona preparazione e la zona distribuzione pasti

785mq, superficie dell'area ristorazione